
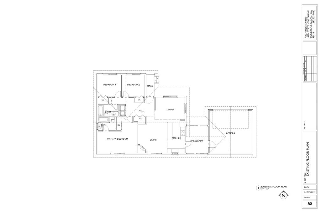
The house is dated, in need of repairs and the spaces no longer work for the family of four. They would like more natural light inside and a stronger inside / outside connection and the ability to use their backyard more comfortably. The current T-shaped galley kitchen is cramped and inhibits workflow. Comfortable seating is at a premium and the bathrooms are crowded. What storage they currently have is overflowing. The proposal is for a 400 sf addition that would house a family room and one of the bedrooms. This will take some of the pressure off the current space and allow for more storage and bigger bathrooms. The kitchen will flip to the front of the house which will provide a larger L-shaped work area wrapped around an island sized to accommodate four. The dining will move to the back which will allow a 12′ slider to be installed along the back wall which will provide more light and connection to the backyard. An covered pergola type structure stairs and terracing will make the backyard more accessible. The current front porch will be enclosed and become the entry providing a visibly more welcoming entrance as well as a mudroom.





