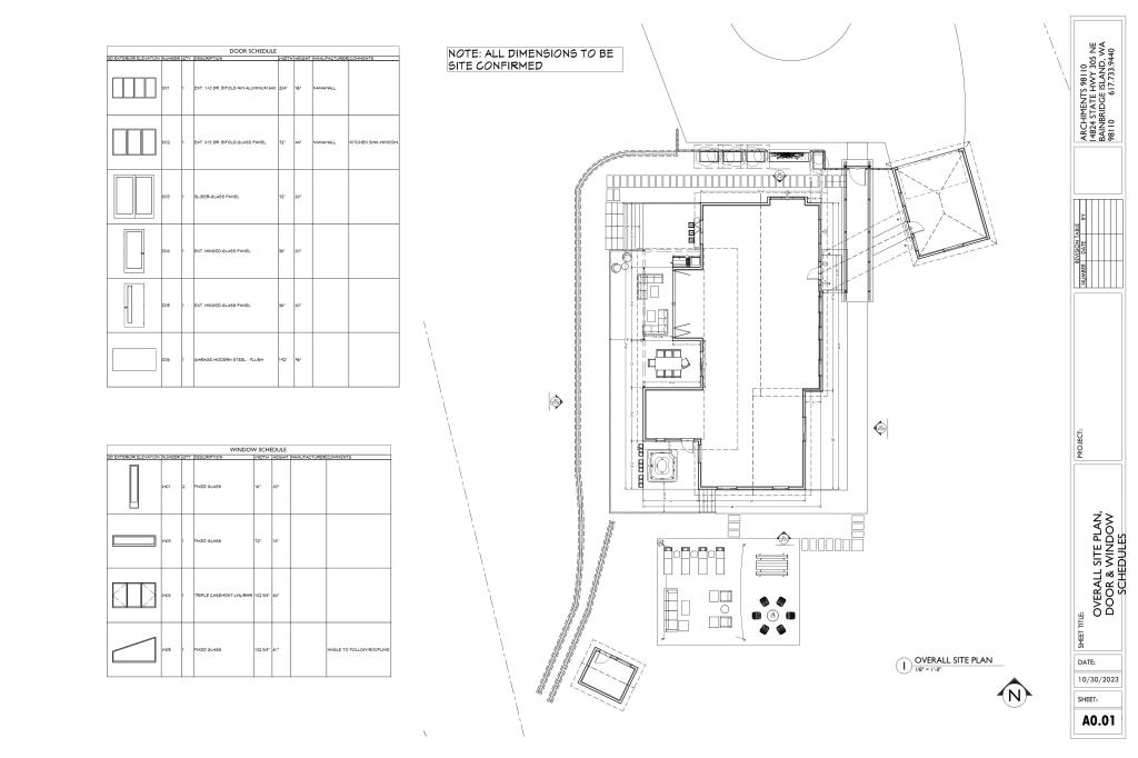
When these clients purchased this house they really like the updates that had been done to the interior of the but they didn’t like the exterior – especially the bay window. They were looking for something updated / modern / contemporary. They were also interested in some ideas to improve their outdoor living space. To that end, I proposed expanding their back deck and removing some of the columns, by replacing the supporting beam, so they weren’t so intrusive. As part of this, a folding glass wall could be installed in the living room so it could be opened and entertaining could be seamless. The bay would be replaced with a boxed series of windows that look out at a new water feature to divert attention from passing traffic and provide privacy as well. Some of the siding would be replaced with vertical cedar boards. An accent stone would be used along the front facade and turn out from the house to become a porch rail at the entry. …and of course a coat of paint in a fresh moody color.







